Мы используем файлы cookie.
Недвижимость в ТюмениПродажа жилой недвижимостиПродажа квартирыТюменская областьТюмень городской округТюменьЦентральный2-й заречный м-нЗаречный проезд
- Построен 2013 г.
- Кирпичный
- 16 этажей
Продажа квартир по адресу Заречный проезд, 14
от 6 млн ₽от 123 796 ₽/м²
Тюмень, 2-й заречный микрорайон м-н, Заречный проезд, 14
Объявления в этом доме

1 из 36
Тюмень, 2-й заречный микрорайон м-н, Заречный проезд, 14
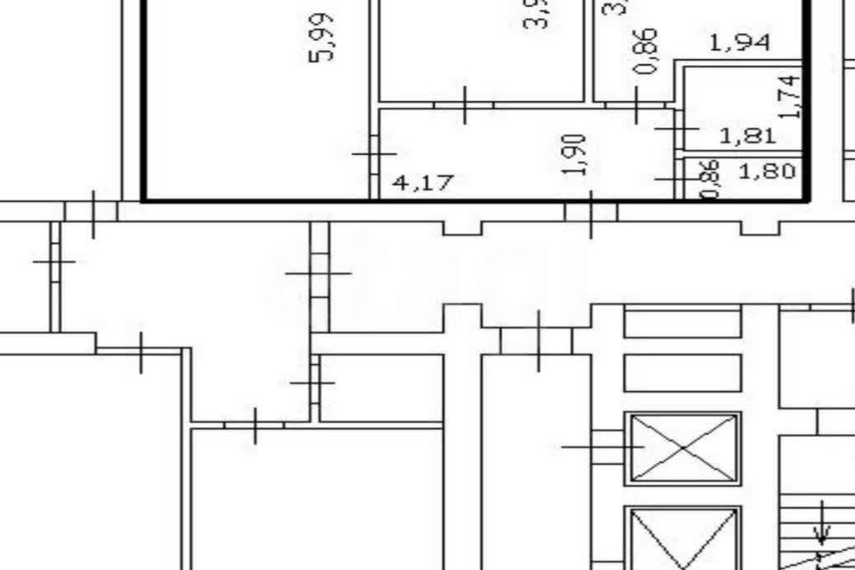
Уважаемые покупатели продается трехкомнатная квартира в современном кирпичном доме с автономной газовой котельной предлагает выгодное сочетание экономичности, комфорта и готовности к моментальному заселению. Общая площадь 66 кв.м. рационально распределена между изолированными помещениями: просторная гостиная 20 кв.м., кухня 16 кв.м, раздельный санузел, и две спальни площадью 11 и 19 кв.м. Ключевое преимущество планировки — схема «распашонка» с окнами на две стороны, обеспечивающая прекрасную инсоляцию и эффективное проветривание. В квартире выполнен качественный современный ремонт с использованием практичных материалов: ламинат, натяжные потолки, классическая отделка стен. В санузле уложена новая плитка, установлен современный санфаянс. Для комфорта в любое время года предусмотрен кондиционер. В собственность приобретается полностью укомплектованное жилье: кухонный гарнитур Lorenа с системами Blum, вся встроенная и бытовая техника остаются новому владельцу, что избавляет от дополнительных затрат и хлопот.
Жилой комплекс обеспечивает высокий уровень приватности и безопасности благодаря огороженной территории с закрытым двором без машин, где обустроена детская игровая площадка. Для транспортных средств предусмотрен подземный паркинг на 250 мест. Автономная газовая котельная существенно снижает расходы на отопление и горячее водоснабжение в сравнении с централизованными системами, обеспечивая независимость от сезонных отключений. Локация отличается развитой инфраструктурой и отличной транспортной доступностью: остановки общественного транспорта находятся напротив дома, что позволяет быстро добраться до центра города в течение 10 минут. В пешей доступности расположены детские сады, школы, супермаркет «Лента» и торговый центр «Зеленый берег». Квартира свободна от проживания, правовой статус чистый, документы готовы к проведению сделки
Звоните !.
МЫ ГАРАНТИРУЕМ ФИНАНСОВУЮ БЕЗОПАСНОСТЬ ДЛЯ НАШИХ КЛИЕНТОВ.
Код пользователя: 126937
Номер в базе: 999776
Этажи Тюмень
Агентство недвижимости
11 990 000 ₽
138 933 ₽/м²
Скидка на ипотеку 1,3%
Проверено в Росреестре
4 часа назад

1 из 12
Тюмень, 2-й заречный микрорайон м-н, Заречный проезд, 14
Код предложения ID 621956. Посмотрев меня в живую, вы влюбитесь и поймете, что нашли квартиру мечты!Продается квартира с идеально сделанным ремонтом, в которой все продумано до мелочей, прожили собственники там всего 2 года , из-за обстоятельств пришлось уехать. Ремонт исключительно качественными материалами, делали для себя. Заменили даже трубы. Кухня "Лорена" остается вместе с кухонной техникой включая встроенный холодильник, встроенную морозильную камеру, посудомоечную машину. В квартире видеодомофон, индивидуальная разводка труб по полу, теплые полы, установлены кондиционеры. В тамбуре дополнительный шкаф и место для обуви. В общем, всё сделано для комфортной и спокойной жизни. Остаётся абсолютно вся мебель, которую вы видите на фото. Вы легко и быстро сможете добраться с заречного проезда как на машине, так и на автобусе за счет удобной транспортной развязке до следующих районов: Дом обороны, Ватутина, Матмасы, Тарманы, Мыс, Лесобаза, ДОК, Маяк, Стрела, Южный, Комарова, Тюменская слобода, Восточный, Южный, МЖК, Войновка, Казарова, Ново-Патрушево.Звоните, покажем в любое время!Дата актуализации: 01.10.2025 15:51:38Локация: Тюмень, Заречный 2 мкр.
СОВА-Недвижимость
Агентство недвижимости

1 из 20
Тюмень, 2-й заречный микрорайон м-н, Заречный проезд, 14
Код предложения ID 753276. Квартира с качественно выполненным ремонтом, полы ламинат, стены обои, санузел кафель. Очень хороший район, рядом детские сады, школы, магазины, автобусные остановки, аптеки. Двор хороший ухоженный подъезд аккуратный. Звоните, расскажем подробности, организуем показ в удобное для вас время.Дата актуализации: 05.10.2025 19:21:01Локация: Тюмень, Заречный 2 мкр.

1 из 25
Тюмень, 2-й заречный микрорайон м-н, Заречный проезд, 14
Двухкомнатная квартира в современном кирпичном доме расположена в центре Заречных микрорайонов, что обеспечивает отличную транспортную доступность и развитую инфраструктуру. Ключевым преимуществом дома является автономная газовая котельная, гарантирующая стабильное отопление и горячее водоснабжение без сезонных отключений и позволяющая существенно экономить на коммунальных расходах. Для комфорта жителей в подъезде установлены два лифта, включая грузовой, а также оборудован пандус. Придомовая территория закрыта и находится под видеонаблюдением, благоустроена детской игровой зоной. Имеется подземный паркинг с возможностью приобретения или аренды машиноместа. На первых этажах здания расположены аптека, продуктовый магазин и другие объекты повседневного спроса.
Район обладает высокой инфраструктурной обеспеченностью: в пешей доступности находятся детский сад №160, школы №43 и №94, взрослая и детская поликлиники, женская консультация. Для активного отдыха и занятий спортом поблизости расположены спорткомплекс "Здоровье", фитнес-клубы и аквапарк "ЛетоЛето". В соседнем микрорайоне Европейский регулярно проводятся развлекательные мероприятия для детей. В шаговой доступности — торговый центр "Зелёный берег", отделения банков и другие учреждения. Остановка общественного транспорта в 50 метрах от дома обеспечивает быструю связь с любой частью города.
В квартире выполнен ремонт с применением качественных материалов и продуманных решений. Установлены системы фильтрации воды на кухне и в ванной, в помещениях с плиточным покрытием смонтированы теплые полы. Балкон утеплен и остеклен, что позволяет использовать его как дополнительное функциональное пространство круглый год. Проведена полная замена всей сантехники и электрики, стены и полы выровнены. Состояние объекта позволяет заселяться без каких-либо дополнительных вложений и немедленно начинать комфортную жизнь.
МЫ ГАРАНТИРУЕМ ФИНАНСОВУЮ БЕЗОПАСНОСТЬ ДЛЯ НАШИХ КЛИЕНТОВ.
Код пользователя: 181181
Номер в базе: 9641644
Этажи Тюмень
8 600 000 ₽
158 671 ₽/м²
Скидка на ипотеку 1,3%
Проверено в Росреестре
8 дней назад

1 из 28
Тюмень, 2-й заречный микрорайон м-н, Заречный проезд, 14
Продаётся квартира в одном из самых востребованных районов города, район Заречный-2.
ПЛАНИРОВКА: квартира формата 2+. Просторная прихожая, кухня-гостиная и 2 спальни. Санузел раздельный. Квартира-распашонка.
Есть выход на балкон, в котором можно организовать пространство для хранения вещей.
КВАРТИРА: квартира с современным ремонтом, с просторными изолированными комнатами.
ДОМ: дом выполнен из кирпича, 2014 год постройки.
На каждые 2 подъезда установлена котельная, Вас не будет беспокоить вопрос отключения горячей воды на опрессовку, ремонт труб и тд. Вам также не придется ждать общегородских сроков по включению и отключению отопления. Благодаря материалу стен, квартира очень тёплая, даже в самые сильные морозы. Хорошая звукоизоляция. Двор не проездной, парковка открытая во дворе, так же есть возможность арендовать или приобрести парковочное место в подземном паркинге.
РАЙОН: Заречный один из самых популярных районов города. Район активно развивается и привлекает своей инфраструктурой.
Широкие улицы и дороги, большое количество парковочных мест. Рядом с домом есть все необходимое для жизни: школы(2 корпуса №94,№62,№43), детские садики(3 корпуса №160,№167, Веснушки), продуктовые магазины, ТЦ "Зеленый Берег", гипермаркет "Лента", "HOFF", "Алебашевский базар", рынки, остановки общественного транспорта в минутах ходьбы от дома и тп.В 5 минутах ходьбы облагораживают озеро Цыганское, в ближайшее время там будет будет прекрасное место для прогулок. А также в пешей доступности новая набережная в парке 65 лет победы и аквапарк "Лето-Лето".
В ближайших перспективах будет построена новая развязка, благодаря которой Заречный соединится с районом ДОК .
Чистая продажа, быстрая сделка! Торг возможен!
ЗВОНИТЕ, с удовольствием организую просмотр.
МЫ ГАРАНТИРУЕМ ФИНАНСОВУЮ БЕЗОПАСНОСТЬ ДЛЯ НАШИХ КЛИЕНТОВ.
Код пользователя: 114000
Номер в базе: 4364848
Этажи Тюмень

1 из 21
Тюмень, 2-й заречный микрорайон м-н, Заречный проезд, 14
Продается хорошая квартира 1+ в центре Заречных микрорайонов
Новый кирпичный дом с автономной газовой котельной для экономии на коммунальных платежах и независимости от городских сетей.
В подъезде 2 лифта и предусмотрен пандус. Закрытая дворовая территория с детской площадкой и видеонаблюдением. Есть подземный паркинг (возможность купить или арендовать машиноместо). На 1 этажах расположены аптека и различные магазины.
Рядом расположены детский сад №160, школы №43 и №94, поликлиника (взрослая и детская), женская консультация, спорткомплекс "Здоровье", фитнес-клубы, аквапарк "ЛетоЛето", ТЦ "Зелёный берег", банки и другие учреждения.
В соседнем микрорайоне Европейский регулярно проводятся мероприятия для детей. Удобная транспортная развязка, остановка общественного транспорта рядом с домом.
Остается кухонный гарнитур и шкаф-купе. Возможна сдача арендатору сразу после покупки квартиры 25000р+счетчики (вложений дополнительных не нужно)
Звоните! Организуем показ в любое время!
Консультация по ипотеке БЕСПЛАТНАЯ!
МЫ ГАРАНТИРУЕМ ФИНАНСОВУЮ БЕЗОПАСНОСТЬ ДЛЯ НАШИХ КЛИЕНТОВ.
Код пользователя: 69569
Номер в базе: 9679759
Этажи Тюмень
5 950 000 ₽
129 912 ₽/м²
Скидка на ипотеку 1%
Проверено в Росреестре
2 недели назад

1 из 24
Тюмень, 2-й заречный микрорайон м-н, Заречный проезд, 14
Продается красивая, стильная квартира формата 3+ ( 3 спальни и кухня-гостиная) в развитой районе 2-й Заречный.Кирпичный дом, 2014 года постройки.
В квартире сделан современный ремонт с использованием качественных материалов. При продаже остается: кухонный гарнитур, диваны , шкафы в спальнях, кровать во взрослой спальне ,встроенная техника.
15 этаж откуда открывается шикарный вид на город.
Видеонаблюдение, подземный паркинг (можно купить или арендовать машиноместо). В доме оборудована автономная газовая котельная,что позволит сэкономить на коммунальных платежах и не зависеть от городских сетей.
На 1 этажах дома располагается аптека и много различных магазинов. Рядом находятся детский сад №160, школы №43 и №94,поликлиника взрослая и детская,женская консультация,спорткомплекс "Здоровье",фитнесклубы, Аквапарк "Лето.Лето", ТЦ "Зелёный берег", банки и другие учреждения. Хорошая транспортная развязка, остановка общественного транспорта рядом с домом.
МЫ ГАРАНТИРУЕМ ФИНАНСОВУЮ БЕЗОПАСНОСТЬ ДЛЯ НАШИХ КЛИЕНТОВ.
Код пользователя: 98
Номер в базе: 1779354
Этажи Тюмень
13 000 000 ₽
168 393 ₽/м²
Скидка на ипотеку 1,3%
Проверено в Росреестре
8 дней назад

1 из 25
Тюмень, 2-й заречный микрорайон м-н, Заречный проезд, 14
Продается двухкомнатная квартира в развитой районе города- 2-ой Заречный мкр.
Кирпичный дом, 2014 года постройки.
В доме имеется видео наблюдение, подземный паркинг (можно купить или арендовать). В доме оборудована автономная газовая котельная, что позволит сэкономить на коммунальных платежах и не зависеть от городских сетей.
В доме располагается аптека и много различных магазинов. Рядом находятся детский сад №160, школы №43 и №94,поликлиника взрослая и детская,женская консультация,спорткомплекс "Здоровье",фитнесклубы, Аквапарк "Лето.Лето", ТЦ "Зелёный берег", банки и другие учреждения. Хорошая транспортная развязка, остановка общественного транспорта рядом с домом. Помогу с оформлением ипотеки. Показ в любое время по предварительному согласованию.
Звоните!!
МЫ ГАРАНТИРУЕМ ФИНАНСОВУЮ БЕЗОПАСНОСТЬ ДЛЯ НАШИХ КЛИЕНТОВ.
Код пользователя: 63239
Номер в базе: 1867559
Этажи Тюмень
Хотите найти квартиру в этом доме?
Хотите получать уведомления о новых объявленияхв этом доме?

Объявления в соседних домах
Места для парковки рядом
- Тюмень, 2-й заречный микрорайон м-н, Солнечный проезд, 7180 000 ₽
- Тюмень, 2-й заречный микрорайон м-н, Солнечный проезд, 7
- Тюмень, Европейский м-н, улица Ю.-Р.Г. Эрвье, 32 к1900 000 ₽
- Тюмень, Европейский м-н, улица Ю.-Р.Г. Эрвье, 32 к1
- Тюмень, 3-й заречный микрорайон м-н, улица Газовиков, 572 550 000 ₽
- Тюмень, 3-й заречный микрорайон м-н, улица Газовиков, 57
- Тюмень, 2-й заречный микрорайон м-н, Солнечный проезд, 7180 000 ₽
- Тюмень, 2-й заречный микрорайон м-н, Солнечный проезд, 7
- Тюмень, 3-й заречный микрорайон м-н, Заречный проезд, 41810 000 ₽
- Тюмень, 3-й заречный микрорайон м-н, Заречный проезд, 41
- Тюмень, 2-й заречный микрорайон м-н, Солнечный проезд, 7180 000 ₽
- Тюмень, 2-й заречный микрорайон м-н, Солнечный проезд, 7
- Тюмень, 2-й заречный микрорайон м-н, Солнечный проезд, 7180 000 ₽
- Тюмень, 2-й заречный микрорайон м-н, Солнечный проезд, 7
- Тюмень, 2-й заречный микрорайон м-н, Солнечный проезд, 7179 000 ₽
- Тюмень, 2-й заречный микрорайон м-н, Солнечный проезд, 7
Характеристики дома
Год постройки2013
Материал стенКирпичный
Количество этажей16
Количество квартир302
Детская площадкаесть
Спортивная площадкаесть
Год ввода в эксплуатацию2014
Количество подъездов6
Количество лифтов12
Наименьшее количество этажей12
Холодное водоснабжениеЦентральное
Горячее водоснабжениеАвтономная котельная (крышная встроенно-пристроенная)
ВодоотведениеЦентральное
ТеплоснабжениеАвтономная котельная (крышная встроенно-пристроенная)
ЭнергоснабжениеЦентральное
ВентиляцияПриточно-вытяжная
Тип перекрытийЖелезобетонный
Тип фундаментаИной
Класс энергоэффективностиB
ГазоснабжениеАвтономное
Отзывы о доме
4.8
Рейтинг дома на основе 1 отзываОтзывы 1
- ЕЕкатерина22 июня 20234.8
Кирпичный многоквартирный дом, во дворе детская и спортивные площадки, планируется сделать закрытую территорию. Крытая парковка и парковка во дворе. В доме СВОЯ КОТЕЛЬНАЯ, горячую воду летом не выключают. Рядом несколько школ и детских садов в шаговой доступности... , множество детских кружков. В 10 минутах ходьбы Аквапарк Лето-лето, через дорогу ЖК Европейски, в 10 минутах ходьбы Лента, скоро рядом с Лентой построят большой торговый центр с кинотеатром и магазинами. Удобная транспортная развязка, 10 минут до центра на машине.
Преимущества
- Доступность общественного транспорта
- Доступность магазинов
- Парки поблизости
Живёте в этом доме?
Есть проблемы в доме? Расскажите о них здесь, чтобы помочь другим людям выбрать хороший дом

🏠 Как купить квартиру по адресу Заречный проезд, 14 на сайте Домклик?
- ✔ Выберите предложения с нужным количеством комнат. В этом помогут фильтры каталога.
- ✔ Просмотрите карточки объектов — в них есть подробная информация и фото.
- ✔ Если вы хотите купить квартиру в ипотеку, в личном кабинете можно рассчитать условия и подать заявку — она будет рассмотрена онлайн, ехать в банк не нужно.
- ✔ Свяжитесь с продавцом квартиры по телефону напрямую или зарегистрируйтесь в личном кабинете, чтобы позвонить, не раскрывая свои контактные данные.
- ✔ Если нужного варианта вы не нашли, подпишитесь на обновления, и мы сообщим о новых предложениях.
💸Цены на квартиры
Средняя стоимость , по адресу Заречный проезд, 14 составляет: 11 990 000 руб.
- 🟢 Однокомнатные (1-комнатные): 5 950 000 руб.
- 🟢 Двухкомнатные (2-комнатные): 11 275 000 руб.
- 🟢 Трехкомнатные (3-комнатные): 12 326 666 руб.
В каталоге представлены квартиры от 5 950 000 до 13 850 000 руб., площадью от 48 до 86 кв. м. Средняя стоимость квадратного метра недвижимости в данном доме — 148 802 руб.
📚Информация о доме по адресу Заречный проезд, 14
На странице вы найдете основную информацию о доме — тип, год постройки, этажность. Оценить недвижимость поможет информация от пользователей портала: сейчас рейтинг дома — 4.8, количество оценок — 1.